Direkt an der stark frequentierten Hauptverkehrsstraße in Menden zu Fröndenberg befindet sich unsere Immobilie.
Grundstücksgröße:
4.556,00 m²
Nutzungsart:
gewerblich, Wohnzwecke
Nutzfläche: ca. 3.400,00 m² und Wohnfläche ca. 160,00 m²
Art des Gebäudes:
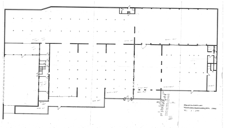
Bei dem vorliegenden Objekt handelt es sich um eine Gewerbeimmobilie bestehend aus drei angebauten Gebäudeteilen.
Im Rahmen der Gebäudebeschreibung wird die Immobilie dementsprechend in drei einzelne Einheiten unterteilt. Einheit 1 (E1): Geschäftshaus wird als Ausstellungsfläche für einen Sanitär- und Fliesenhandel genutzt, eingeschossig, straßenseitig an Nordostgrenze gelegen. Einheit 2 (E2): Büro-/ Wohngebäude, zweigeschossig, süd-östlich an Einheit 1 grenzend Einheit 3 (E3): Lagerhalle/Ausstellungshalle eingeschossig, an Südwestgrenze gelegen, dient z. Zt. als Ausstellungsfläche für ein Fliesenoutletcenter.
Bauweise:
zweiseitig angebaut (Nordost-und Südwestseite)
Baujahr:
ca. 1970 (angenommen) wir, also die jetzigen Nutzer haben die baulichen Anlagen entsprechend unserer Bedürfnisse renoviert.
Belichtung und Belüftung:
gute Belichtung & gute Belüftung
Allgemeinbeurteilung:
Das Objekt befindet sich in einem guten Allgemeinzustand. Architektur und Bautechnik sowie Funktion bzw. Zuschnitt entsprechen dem Baujahr.
Die Verkäuflichkeit/Vermietbarkeit ist nicht als schwierig anzusehen, da es sich um eine Gewerbeimmobilie mit entsprechend unterschiedlich zu nutzenden Gebäudebestandteilen handelt. Zumal in solch einer Lage freie Gewerbeflächen nicht gegeben sind.
Aufgeteilt und vermietet würde es besonders interessant sein, da angefangen von Bäckerbetrieben bis hin zu Fitness Studios eine Vielzahl von unterschiedlichen Anfragen in den letzten Jahren für gewisse Bereiche gegeben waren/sind.
Geheizt wird mit Gas, überwiegend mit Deckenstrahlern von der Firma Schulte. In E3 sowie Büros & Sanitäranlagen mit normalen Heizkörpern.
Außerdem besitzt das Objekt eine Wohnung mit Kamin & Sauna, Wohnfläche ca. 150-160 qm.
Konstruktionsart:
Massivbau (E2, teilw. E1) Stahlkonstruktion (E3, teilw. E1)
Wohn-bzw. Geschäftslage:
gute bis mittlere Wohnlage, gute Geschäftslage
Art der Bebauung:
gemischte Bebauung, überwiegend gewerblich, vereinzelt wohnbaulich
Verkehrslage:
Nebenlage
Entfernungen:
-Ärzte (Allgemeinmediziner) 1 km
-Bahnhof (Fröndenberg) 1 km
-Bundesstraße (B7) 2 km
-Autobahn (A44) 7,5 km
-Flughafen (Dortmund) 12 km
-Geschäfte (ALDI Fröndenberg) 1 km
-Krankenhaus (St. Vincenz Krankenhaus) 4 km
-Zentrum (Menden) 3,5 km
Straßenfront: überwiegend als Schaufensterfront ca. 95 m
Mittlere Tiefe: ca. 52 m
Grundstücksform: trapezförmig
Höhenlage zur Straße: normal
Grenzverhältnisse, nachbarliche Gemeinsamkeiten: dreiseitige Grenzbebauung des Hauptgebäudes an der Nord-west-, der Südwest-und der Südostseite
Einfriedung: Pflanzkübel aus Beton an der Straßenseite
Baugrund, Grundwasser (soweit augenscheinlich ersichtlich): keine Grundwasserschäden ersichtlich, gewachsener, normal tragfähiger Baugrund wird angenommen
Erschließungszustand: Straße endgültig ausgebaut
Verkehr: starker Durchgangsverkehr
Straßenausbau: voll ausgebaut, Fahrbahn asphaltiert, beidseitige Gehwege
Anschlüsse an Versorgungs-und Abwasserleitung: Kanalanschluss, Strom, Telefon, Wasser
Mögliche Bebaubarkeit: Eine gemischte Nutzung ist unter Berücksichtigung der Einschränkungen des geltenden Flächennutzungsplanes möglich.
Sonstige Anlagen / besondere Bauteile:
vielflächig Lichtkuppel
Vordach / Eingangsüberdachung (E1)
Sauna (E2)
Balkon (E2)
Markise (E2)
Rolltore (E3)
Rampe für das Be- und Entladen (E3)
Innenpodest mit Zugang über Holztreppe (E3)
Deckenflächen:
abgehängte Gitterdecke (E1)
Deckenvertäfelung (E2)
Rasterplatten (E2)
freiliegende Dachkonstruktion (E3)
Umfassungswände:
Mauerwerk, Stahlkonstruktion
Innenwände:
Mauerwerk, Leichtbauwände
Fußböden:
Teppichboden (E1)
Zementestrich (E1, E3)
Fliesen (E2)
Betonboden (E3)
Geschosstreppen:
Stahlbetontreppe mit gefliesten Stufen (E2)
Geschosstreppengeländer:
Metallgeländer / -handlauf (E2)
Die gesamte Flachdachfläche wurde frisch saniert.